Angebote zur Vermarktung Ihrer Immobilie? Jetzt anfordern

Büro/Praxis zum Kauf in Drochtersen Hartwig Kruse Immobilien GmbH

Ihr neuer Standort direkt neben dem Rathaus!

Ansprechpartner

Niklas Hagenah

Telefon: 04770-335
Telefax: 04770-808926

info@immo-kruse.de

Kontakt aufnehmen

Objekt-Nr. 12486

Kaufpreis
999.000 €
Käuferprovision
3.57 % inkl. gesetzliche MwSt.
Zimmer
23
Gesamtfläche
ca. 471,36 m²
Anzahl separate WCs
3
Anzahl Zimmer
23
Kategorie
Gehoben
Baujahr
2014
Bauweise
Massiv
Befeuerungsart
Gas
Provisionspflichtig
Stellplätze
17
Stellplatzart
Freiplatz
Zustand
neuwertig

21706 Drochtersen

Energieausweis

Befeuerungsart
Gas
Energieausweis
ohne, liegt zur Besichtigung vor
0 200 400+

Beschreibung

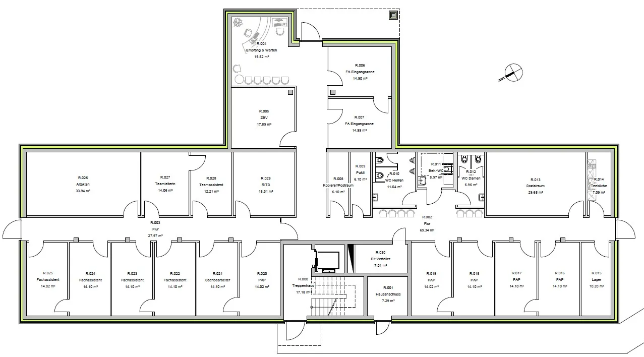
Diese hochwertig ausgestattete Büro- und Gewerbefläche befindet sich im Erdgeschoss eines modernen Wohn- und Geschäftshauses aus dem Baujahr 2014/2015. Sie überzeugt durch ihre klare Architektur, eine moderne Gebäudetechnik sowie eine durchdachte Raumaufteilung. Die großzügigen, lichtdurchfluteten Räume schaffen ein professionelles Arbeitsumfeld, das Komfort und Funktionalität miteinander vereint - ideal für Dienstleister, Praxen, Kanzleien oder Unternehmen, die einen repräsentativen Standort mit hoher Nutzerfreundlichkeit suchen.

Mit einer Gesamtfläche von ca. 471 m² Nutzfläche bietet die Einheit eine gelungene Mischung aus offenen Arbeitsbereichen, Einzelbüros und Besprechungszonen.

Insgesamt stehen 16 Büroräume zur Verfügung - ergänzt durch Empfangs- und Wartebereich, Aktenraum, Kopierer-/Postraum, Abstellraum, Lagerfläche sowie einen separaten Raum für die Elektroverteilung. Ein großzügiger Sozialraum mit angrenzender Teeküche samt moderner Einbauküche lädt zu Pausen oder kurzen Besprechungen in angenehmer Atmosphäre ein. WC-Anlagen für Damen und Herren sowie ein separates, behindertengerechtes WC komplettieren das Raumangebot.

Die Fläche ist barrierefrei zugänglich und ermöglicht somit einen komfortablen und stufenlosen Zugang für Mitarbeitende, Kunden und Patienten.

Durch die flexible Raumstruktur ist auch eine Teilung der Fläche in mehrere Einheiten - beispielsweise für Co-Working, Praxisgemeinschaften oder separate Büros - denkbar.

Für angenehme Temperaturen sorgt eine zentrale Gas-Brennwertkesselanlage, ergänzt durch Solarthermie-Kollektoren, die sowohl die Warmwasserbereitung als auch die Heizungsunterstützung effizient übernehmen. Die einzelnen Räume sind mit Plattenheizkörpern mit individueller Regelung ausgestattet. Die zentral gelegenen Hausanschluss- und Technikräume gewährleisten einen reibungslosen Betrieb.

Energieausweis:
Der Energieausweis befindet sich in Bearbeitung.

Abgerundet wird das Angebot durch insgesamt 17 zugeordnete Kfz-Stellplätze direkt vor dem Gebäude - ein klarer Vorteil für Mitarbeiter und Besucher. Überdachte Fahrradstellplätze sowie ein separater Unterstand ergänzen den Außenbereich auf praktische Weise.

Eine Übergabe ist kurzfristig möglich. Die Immobilie ist bis November 2025 vermietet.

Ein Objekt, das durch Qualität, Flexibilität und eine hervorragende Lage überzeugt - ideal für zukunftsorientierte Unternehmen. Kontaktieren Sie uns für weitere Informationen oder einen Besichtigungstermin - wir freuen uns, Ihnen dieses außergewöhnliche Objekt präsentieren zu dürfen!

Lage

Die angebotene Büro-/Gewerbefläche befindet sich in zentraler, bestens erreichbarer Lage von Drochtersen - direkt neben dem Rathaus, im Herzen des Kehdinger Landes. Die Gemeinde liegt an der Deutschen Fährstraße und nahe der Elbe und bietet eine naturnahe Umgebung mit Marsch- und Moorlandschaften sowie kurze Wege zum Elbstrand.

Dank der hervorragenden Infrastruktur, einer belebten Ortsmitte und einem breiten Angebot an Nahversorgung, Bildungseinrichtungen und Gesundheitsdiensten ist der Standort sowohl für Mitarbeitende als auch für Kundschaft attraktiv und komfortabel erreichbar.

Die Anbindung an den öffentlichen Nahverkehr erfolgt über den Hamburger Verkehrsverbund (HVV), dessen nächstgelegene Haltestelle fußläufig erreichbar ist. Der Bahnhof in Stade, etwa 20 Kilometer entfernt, bietet Anschluss an die Strecke Cuxhaven-Hamburg und somit auch an das Hamburger S-Bahn-Netz. Mit dem Auto gelangen Sie über die A26 ebenfalls schnell nach Stade und weiter in Richtung Hamburg. Eine direkte Verbindung nach Schleswig-Holstein besteht über die nahegelegene Elbfähre Glückstadt-Wischhafen.

Ein beliebtes Ausflugsziel in unmittelbarer Nähe ist die Elbinsel Krautsand mit ihrem weitläufigen Sandstrand - ideal für entspannte Stunden an der Elbe. Drochtersen selbst bietet zudem ein aktives Vereinsleben mit zahlreichen Freizeitmöglichkeiten. Überregional bekannt ist der Fußballverein Drochtersen/Assel.

Durch die geplante Erweiterung der A26 und den Bau des Elbtunnels, dessen Anschlussstelle nur rund 3 Kilometer entfernt entstehen soll, wird die regionale und überregionale Erreichbarkeit des Standorts in Zukunft weiter deutlich verbessert.

Sonstiges

Unsere Allgemeinen Geschäftsbedingungen sind Grundlage dieses Angebotes. Wir weisen nochmals darauf hin, dass wir die Angaben vom Eigentümer erhalten haben. Die Firma Hartwig Kruse Immobilien GmbH haftet weder für die Richtigkeit und Vollständigkeit übernommener Angaben noch für die Richtigkeit weiterer Angaben.

Wir weisen darauf hin, dass bei Inanspruchnahme unserer Dienste ein Maklervertrag mit uns zustande kommt.

Eine Vorkenntnis des o. g. Objektes schließen wir aus, wenn Sie uns nicht innerhalb von 8 Tagen nach Zugang dieses Exposés einen Nachweis erbringen, dass Ihnen dieses Objekt bereits bekannt war.

Die von uns versandten Unterlagen sind streng vertraulich und dürfen ohne unsere Einwilligung nicht weitergegeben werden. Eine Weitergabe ohne unsere Einwilligung löst Schadensersatzansprüche gemäß unseren Allgemeinen Geschäftsbedingungen aus.

Alle Angebote sind unverbindlich und freibleibend (Zwischenkauf vorbehalten).

Möchten Sie Ihre Immobilie verkaufen?
Es rufen immer wieder Interessenten an, die sich auf unsere Angebote melden und vergleichbare oder auch andere Objekte suchen. Vielleicht gehört Ihre Immobilie dazu? Gerne sind wir auch Ihnen beim Verkauf behilflich.

Wir freuen uns über Ihren Anruf!

Grundrisse

Zurück