Angebote zur Vermarktung Ihrer Immobilie? Jetzt anfordern

Haus zum Kauf in Wischhafen Hartwig Kruse Immobilien GmbH

Herrenhaus in 21737 Wischhafen

verkauft

Ansprechpartner

Niklas Hagenah

Telefon: 04770-335
Telefax: 04770-808926

info@kruse-immobilien-gmbh.de

Kontakt aufnehmen

Objekt-Nr. 12113

Kaufpreis
599.000 €
Käuferprovision
6.25 % inkl. gesetzliche MwSt.
Wohnfläche
ca. 1.140 m²
Zimmer
31
Nutzfläche
ca. 170 m²
Grundstück
ca. 10.259 m²
Anzahl Zimmer
31
Baujahr
1918
Befeuerungsart
Öl
Denkmalschutz
Heizungsart
Zentralheizung
Provisionspflichtig

21737 Wischhafen

Energieausweis

Befeuerungsart
Öl
Heizungsart
Zentralheizung
Energieausweis
laut Gesetz nicht erforderlich
0 200 400+

Beschreibung

Hier handelt es sich um ein denkmalgeschütztes, stilvolles zweigeschossiges Herrenhaus, welches in Massivbauweise mit verputzter Fassade und Teilkeller 1918 erbaut wurde, später folgten laufende Instandhaltungsmaßnamen (Heizung, Fenster, Außenwände) sowie brandschutztechnische Maßnahmen.

Das abgebundene Walmdach mit Turmaufbau wurde nicht ausgebaut, bietet jedoch weitere Flächen. Die Dacheindeckung erfolgte mit Tondachziegeln und Verstrich.

Das 10.259 m² große Grundstück wurde parkartig mit einem herrlichen alten Baumbestand, mit Hofbefestigungen aus Betonpflaster, Ziegelpflaster und Schotterwegen, hölzerne Grenzabzäunung und Sicht- und Windschutz für die Sitzplätze, mit Gehwegbeleuchtung, einem erhöhten Sitzplatzrondell mit umlaufendem Wassergraben und Stahlbrücke sowie Wasserfall aus Felssteinen mit Wasserpumpe und einem Wasserbrunnen angelegt. Mit einem Blick über das Grundstück können Sie in Richtung Elbe die großen Pötte sehen.

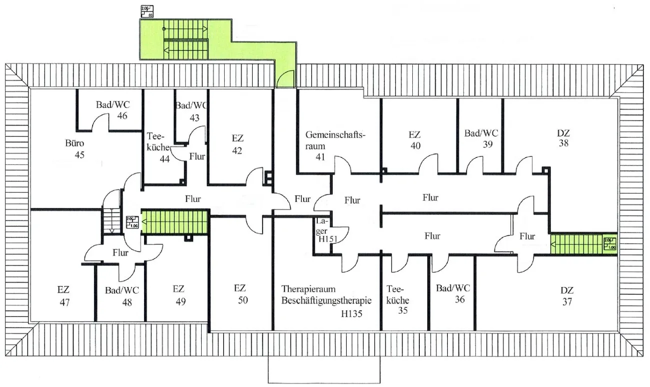
Das Gebäude diente einst als Herrensitz eines Senatspräsidenten, wurde dann später u. a. als Kindereinrichtung und Altenheim genutzt. Ab ca. 1986 wurde dieses Anwesen dann das Zuhause für Menschen mit seelischen Behinderungen. Die Genehmigung umfasst 31 vollstationäre Plätze. Der Innenausbau wurde aufwendig für diese Nutzung ausgebaut.

Die Wohnfläche beträgt ca. 1.140 m², die Nutzfläche ca. 170 m².

Hier ist vieles möglich! Dieses Anwesen bietet Ihnen vielfältige Nutzungsmöglichkeiten, z. B. die Einrichtung einer Seniorenresidenz, als Wohngemeinschaft oder als Institution für Kinder und Jugendliche. Oder möchten Sie Feriengästen ein Urlaubsdomizil in dieser herrlichen Landschaft anbieten? Auch das Wohnen und Arbeiten unter einem Dach, Coworking, oder der Umbau und die Aufteilung in Eigentumswohnungen ist denkbar

Besonderheit:
Das Objekt steht unter Denkmalschutz. Bei einem Baudenkmal oder einem Objekt in einem förmlich festgelegten Sanierungsgebiet können Sie die begünstigten Herstellungskosten für Baumaßnahmen erhöht absetzen. Informieren Sie sich bei uns.

Fördermittel:
Möchten Sie ein denkmalgeschütztes Haus sanieren?
Solche Häuser sind charmant und prägen das Straßenbild. Auch hier können Sie durch die Sanierung Energie und Heizkosten sparen. Informieren Sie sich bei uns.

Investitionen:
In den letzten 15 Jahren wurden bereits Sanierungs-, Renovierungs- und Instandhaltungsarbeiten in Höhe von ca. 400.000, - EUR getätigt.

Energieausweis:
Die Vorlage eines Energieausweises ist nicht erforderlich, da es sich hier um ein denkmalgeschütztes Objekt handelt.

WEITERE INFORMATIONEN:
Gerne übersenden wir Ihnen weitere Informationen über diese Immobilie mit unserem kostenlosen und unverbindlichen Exposé. Teilen Sie uns hierfür unsere EDV-Nr. mit.

Ausstattung

Über den Geschossen befinden sich Holzbalkendecken, über dem Kellergeschoss wurde eine Stahlbetondecke verbaut.

Die Holzfenster mit Isolierverglasung und Rundbögen, die Wohnraumdachflächenfenster mit Isolierverglasung, teilw. Rollläden sowie die 1- und 2-flügeligen Eingangstüren mit Isolierverglasung und die 1- und 2-flügeligen historischen Innentüren in Edelholz verleihen dem Herrenhaus seinen besonderen Charme.

Über gradläufige und gewendelte Treppen, im Erdgeschoss mit Podest und prof. Handläufen, gelangen Sie in die Geschosse. Eine ½-gewendelte Betontreppe führt in den Keller. Über Spar- und Zugtreppen erreichen Sie den Spitzboden. Verzinkte Außentreppen dienen als Fluchtwegetreppen zum 1. und 2. Obergeschoss.

Die Fußböden wurden mit Fliesen-, Teppich- und Kunststoffbelägen versehen.

Die Bäder sind mit Duschen, WCs und Waschbecken ausgestattet, Bewohnerzimmer verfügen teilweise über eigene Waschbecken.

Beheizt wird das Gebäude über eine Ölzentralheizung (Buderus Logano GE315). Weiterhin sind ein Blockheizkraftwerk und ein und Holzvergaserkessel inkl. 2 zusätzlicher Warmwasserspeicher vorhanden. Gemauerte Kamine sind in Treppen- und Wohndielen eingebaut, bisher jedoch noch ohne Nutzung und Anschluss.

Auf dem Grundstück befinden sich ein Blockhaus mit Satteldach, ein hölzerner Gartenschuppen mit Satteldach, ein Pumpenhaus und ein Fahrradunterstand.

Die Hauskläranlage (umfangreich im Jahr 2017 modernisiert/erneuert) mit Tropfkörper als biologische Nachklärung mit Fettabscheider ist für 48 Personen ausgelegt. Die Regenwasserzisterne mit ca. 100 cbm Inhalt wird für die WC-Wasserspülung genutzt. Ein gemauerter oberirdischer Wasserbottich umfasst ca. 80 cbm Wasser. Gemauerte Stellflächen dienen zum Abstellen von Behältern.

Lage

Dieses Anwesen befindet sich in reizvoller Alleinlage am nördlichen Ortsrand des Ortsteils Hamelwörden auf einem traumhaften Grundstück. Hier, zwischen Hamburg (ca. 75 km Entfernung) und Cuxhaven (ca. 56 km Entfernung) an der Deutschen Fährstraße im herrlichen Kehdinger Land in Elbnähe, inmitten unberührter natürlicher Umgebung und weiter Moorlandschaft können Sie die frische Wald- und Seeluft genießen!

Einkaufsmöglichkeiten für den täglichen Bedarf, das Bildungshaus mit Kindergarten, Grundschule und Bücherei, einen Allgemeinmediziner, eine Zahnarztpraxis sowie ein Physiozentrum und eine Apotheke finden Sie in Wischhafen. Weitere Einkaufsmöglichkeiten, Ärzte und Schulen sind in Freiburg (ca. 7 km Entfernung), Drochtersen (ca. 9 km Entfernung), Hemmoor (ca. 18 km Entfernung) und Stade (ca. 30 km Entfernung) zu erreichen.

Wunderschön ist auch der alte Traditionshafen mit seinem Küstenschifffahrtsmuseum sowie den Museumsschiffen. Ein großer Magnet ist der Wischhafener Yachtclub bzw. Yachthafen mit Liege- und Hallenplätzen für Privatboote (Segelboote und Motorboote) und einem sehr aktiven und erfolgreichen Kinder- und Jugendsport- und Betreuungsprogramm.

Ein weiterer Anziehungspunkt in dieser Region ist der ca. 7 km entfernte weit über die Region hinaus bekannte historische Kornspeicher Freiburg (Elbe) mit seinem umfangreichen, vielfältigen Kulturprogramm direkt am Hafen oder das in ca. 25 km zu erreichende Natureum Niederelbe in Balje, an der Ostemündung, umgeben von Watten, Grünland und Deichen im Urstromtal der Elbe. Hier finden Sie ein Paradies zum Erkunden, Verstehen und Bewahren dieser einmaligen Küstennatur mit ihrer typischen Pflanzen- und Tierwelt.

Die Entfernung zur Kreisstadt Stade mit Anschluss an die Autobahn A26 beträgt ca. 30 km. Über die nahe gelegene Elbfähre Glückstadt-Wischhafen besteht eine gute Verbindung nach Schleswig-Holstein (ca. 11. km nach Glückstadt). Der spätere Elbtunnel und die Anschlüsse an die A26/A22 wer-den in etwa 12 km Entfernung in Drochtersen gebaut. Der nächste Bahnhof mit Anschluss an die Bahnlinie Cuxhaven-Hamburg ("Start" / S-Bahn-Anschluss ab Stade) befindet sich im ca. 18 km entfernten Hemmoor. Eine Bushaltestelle ist in fußläufiger Entfernung erreichbar.

Sonstiges

Bitte wahren Sie die Privatsphäre und sehen Sie vom Betreten des Grundstücks ohne Begleitung unseres Immobilienberaters ab.

Möchten Sie Ihre Immobilie verkaufen?
Es rufen immer wieder Interessenten an, die sich auf unsere Angebote melden und vergleichbare oder auch andere Objekte suchen. Vielleicht gehört Ihre Immobilie dazu? Gerne sind wir auch Ihnen beim Verkauf behilflich.

Wir freuen uns über Ihren Anruf!

Grundrisse

Zurück